



Apartament 2 camere, balcon mare cu boxa - Selimbar central
Imobil cu doar 2 nivele, constructie noua - in derulare (vandute deja apartamente) - poti rezerva acum noua ta locuinta !! Termen finalizare, mutare cca 4-5 luni, astfel ai timp sa ti planifici finantele, decor si mobilier apartament
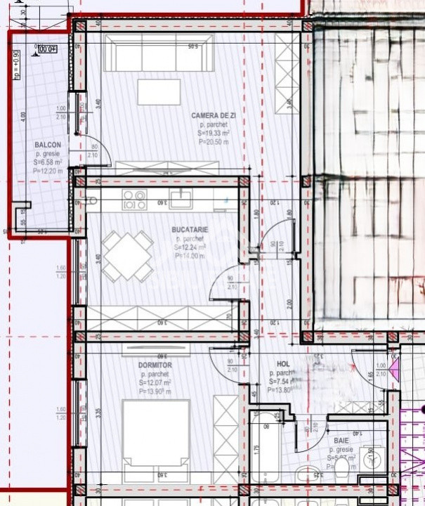
O locuinta luminoasa, ferestre mari si un balcon larg unde ai si camara depozitare
Apartament 2 camere - hol, baie, living cu bucatarie, dormitor, balcon - vezi schita atasata
Spatiu 46 mp + 6 balcon
Se vinde semifinisat la alb 82.800 euro, sau poate fi dusa la cheie
Loc de parcare inclus in pret
Zona placut organizata, strazi asfaltate si iluminate, magazin la 5 minute, acces simplu spre oras
Daca vrei locuinta ta noua, acest apartament este optiunea potrivita la 2 camere