Sibiu Estate utilizează fişiere de tip cookie pentru a personaliza și îmbunătăți experiența ta pe Website-ul nostru. Înainte de a continua navigarea pe Website-ul nostru te rugăm să aloci timpul necesar pentru a citi și înțelege conținutul Politicii de Cookie. Prin continuarea navigării pe Website-ul nostru confirmi acceptarea utilizării fişierelor de tip cookie conform Politicii de Cookie.

Apartament cu 2 camere, zona Doamna Stanca

Sibiu, Selimbar

111.000€
ID: P185239 172
  • Nr. camere:2
  • Nr. dormitoare:1
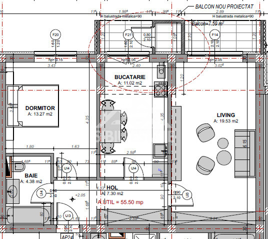
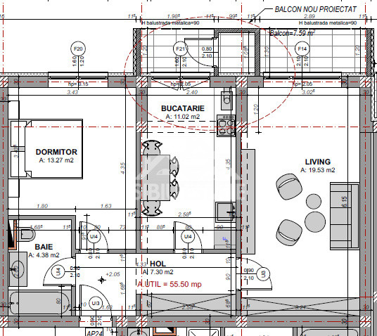
  • S. utila:55.50 mp
  • S. balcoane:7.59 mp
  • S. construita:70.00 mp
  • Comp.:Decomandat
  • Confort:1
  • Etaj:Etaj 1
  • Nr. bucatarii:1
  • Nr. bai:1
  • Nr. balcoane:1
  • Nr. parcari:1
  • An constructie:2025
  • Structura:Beton
  • Tip imobil:Bloc
  • Regim inaltime:P+3
  • Orientare:Est
  • Clasa energetica:B

🏡 Apartament cu 2 camere – confort și compartimentare excelentă în zona Doamna Stanca ✨

Îți prezentăm un apartament modern și bine compartimentat, ideal pentru cei care caută confort, funcționalitate și calitate, într-o zonă aflată în plină dezvoltare – Doamna Stanca.

📐 Suprafață utilă: 55,50 mp
🌿 Balcon: 7,59 mp – include un spațiu de depozitare închis, perfect pentru organizare
🚗 Loc de parcare intabulat separat

🔹 Living spațios – 19,53 mp
🔹 Bucătărie închisă – 11,02 mp
🔹 Dormitor confortabil – 13,27 mp
🔹 Baie – 4,38 mp
🔹 Balcon generos – spațiu ideal pentru relaxare + depozitare

💡 Apartamentul dispune de:
✔️ Încălzire în pardoseală
✔️ Geamuri termopan cu 3 foi de sticlă – izolație termică și fonică superioară
✔️ Centrală termică în condensare – eficiență ridicată și consum redus


📍Situat într-o zonă liniștită și bine conectată la facilități urbane, apartamentul este ideal atât pentru locuit, cât și pentru investiție.

🔑 Programează o vizionare și vino să descoperi noua ta locuință!

🟡 SibiuEstate – Casa Ta, Povestea Noastră

Utilitati
  • Utilitati generale: Curent, Apa, Canalizare, Gaz, CATV, Acces internet, Fibra optica
  • Sistem incalzire: Centrala proprie, Incalzire pardoseala
Finisaje
  • Izolatii: Izolatie Exterior
  • Ferestre: Ferestre PVC
  • Usa intrare: Usa intrare Metal
Dotari
  • Bucatarie: Bucatarie Nemobilata
  • Contorizare: Apometre, Contor gaz
  • Mobilat: Nemobilat
  • Imobil: Interfon

Lucian Boita

Consilier Imobiliar

Contacteaza-ma

Lucian Boita

0741330878