Sibiu Estate utilizează fişiere de tip cookie pentru a personaliza și îmbunătăți experiența ta pe Website-ul nostru. Înainte de a continua navigarea pe Website-ul nostru te rugăm să aloci timpul necesar pentru a citi și înțelege conținutul Politicii de Cookie. Prin continuarea navigării pe Website-ul nostru confirmi acceptarea utilizării fişierelor de tip cookie conform Politicii de Cookie.

Apartament modern, eficient si aproape de natura - in Sibiu, langa lac

Sibiu

66.115€ + TVA
ID: P208581 8
  • Nr. camere:2
  • Nr. dormitoare:1
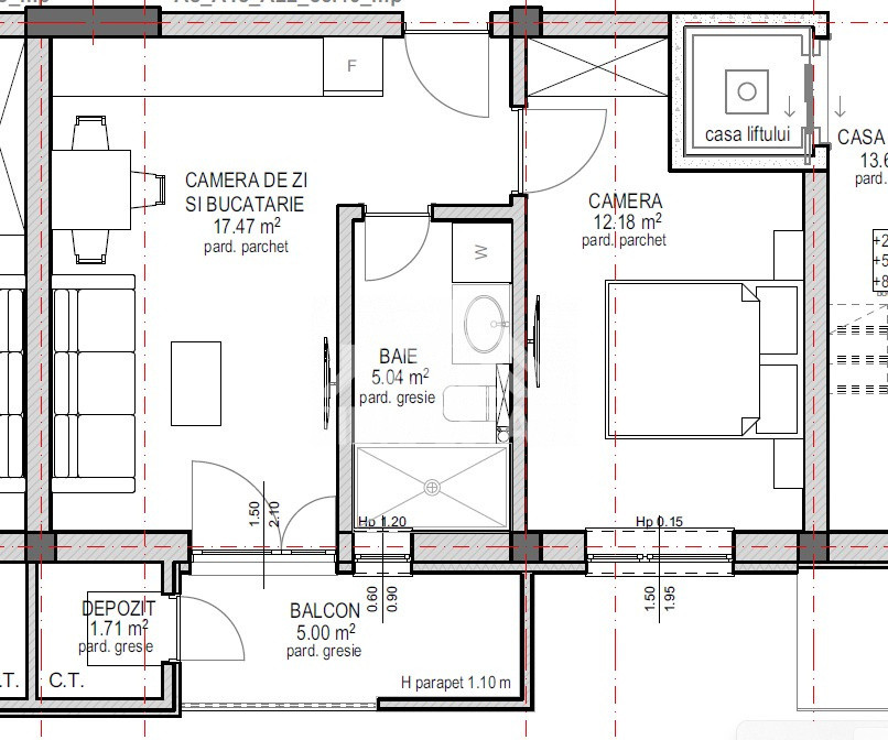
  • S. utila:36.40 mp
  • S. balcoane:5.00 mp
  • S. construita:45.50 mp
  • Comp.:Decomandat
  • Confort:1
  • Etaj:Etaj 1
  • Nr. bucatarii:1
  • Nr. bai:1
  • Nr. balcoane:1
  • An constructie:2025
  • Regim inaltime:P+4

🏡 Apartament nou tip studio – Lacul lui Binder, Sibiu 🌊

Descoperă un apartament modern și eficient, perfect pentru tineri sau investiție sigură!
Situat într-un bloc nou P+4, dotat cu lift de ultimă generație, chiar lângă Lacul lui Binder, într-o zonă liniștită cu acces complet asfaltat.
📐 Suprafață utilă: 36,4 mp
Living + bucatarie -17,47 mp
Dormitor - 12,18 mp
Baie - 5,04 mp
Balcon - 5,00 mp
Spatiu depozitare 1,71 mp
✨ Avantaje:
✔️ Încălzire în pardoseală
✔️ Balcon - ☕
✔️ Spațiu de depozitare exterior - inchis
✔️ Lift modern
✔️ Loc de parcare propriu 🚗
Langa bază sportivă pentru practicarea sporturilor nautice, precum și zona de relaxare și petrecere a timpului liber - Complexul Lacul lui Binder
Predare: Vara 2026
Locuința se predă la alb, dar exista posibilitate de finisare la cheie pe gustul dvs.

💰 Preț: 66115 € + TVA ( 80 000 euro pret final ) Comision 0%
Sibiu Estate – Casa ta, povestea noastră!

Utilitati
  • Utilitati generale: Curent, Apa, Gaz, CATV, Acces internet, Fibra optica
  • Sistem incalzire: Centrala proprie, Incalzire pardoseala
Finisaje
  • Izolatii: Izolatie Exterior
  • Pereti: Vopsea lavabila
  • Ferestre: Ferestre PVC

Florin Macaveiu

Consilier Imobiliar

Contacteaza-ma

Florin Macaveiu

0751056375