
























Top Apartament Sibiu - la cativa pasi de centrul orasului, locatie dejajata , imobil Premium
Apartament cu spatii functionale, balcon larg, garaj si boxa depozitare, lift de ultima generatie, spatii agrement
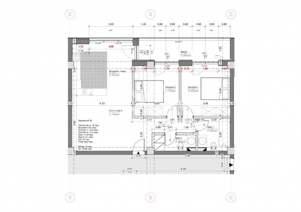
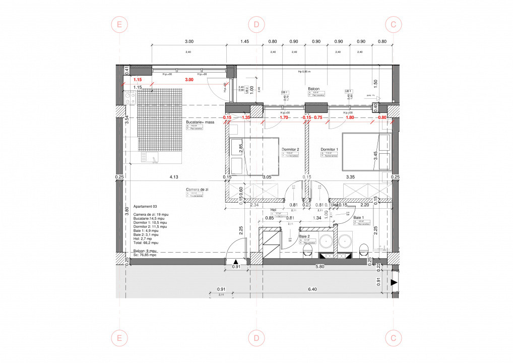
2 dormitoare si 2 bai - dotari si executie la standarde vestice
Locuinta are 66 mp + balcon 9 mp
Avantaj de a fi Proprietar al unui apartament aici - dotari UltraSmart, suprafete vitrate ample, centrala in condensatie, incalzire in pardoseala cu sistem inteligent de control, termostate wireless, detector gaz
Parcare subterana inclusa si boxa depozitare, liftul fiind accesibil chiar din subsol
Spatii verzi, zone de agrement, parcari vizitatori, sens unic intrare - iesire ansamblu, rampe acces persoane dizabilitati, ascensor 8 persoane, camera administrativa, spatiu pentru biciclete, adapost ALA, videointerfon, supravehere video ansamblu
Apartament avangardist pentru pretentiosi !! Daca vrei o locuinta Top in Sibiu, acum ai o optiune excelenta in materie de imobiliare!!
Se vinde la 190.000 Euro - contine TVA, garaj si boxa depozitare. Oferta Limitata !!