









Apartament de vanzare cu 3 camere, 2 bai, balcon, incalzire prin pardoseala, loc de parcare
Avantaje
- accesul se fac pe un drum privat prevazut cu bariera
- constructie noua
-loc de parcare inclus in pret
-incalzire prin pardoseala
- 2 bai
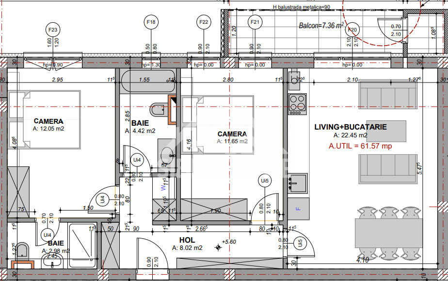
Compartimentare
-HOL s.u. 8.02 mp.
-BAIE s.u. 4.42 mp.
-WC de serviciu s.u. 2.98 mp.
-LIVING cu BUCATARIE de tip open space s.u. 22.45 mp.
-DORMITOR s.u. 12.05 mp.
-DORMITOR s.u 11.65 mp.
-BALCON s.u. 7.36 mp.
Sibiu Estate- Casa ta, povestea noastra