










Casa moderna noua cu 4 camere si 2 bai, Selimbar - teren 480mp -
La 10 minute de Centrele Comerciale/ Mall Selimbar - se vinde o casa noua, compartimentare placuta = functionalitate si confort
Casa este intabulata, momentan se lucreaza la interior, se vinde asa, ori poate finisata la ALB
La parter este hol larg, o camera mica - dressing, zona de zi cu bucataria si baie. Acces la o terasa mare, acoperita de unde cateva trepti coboara spre curte.
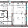
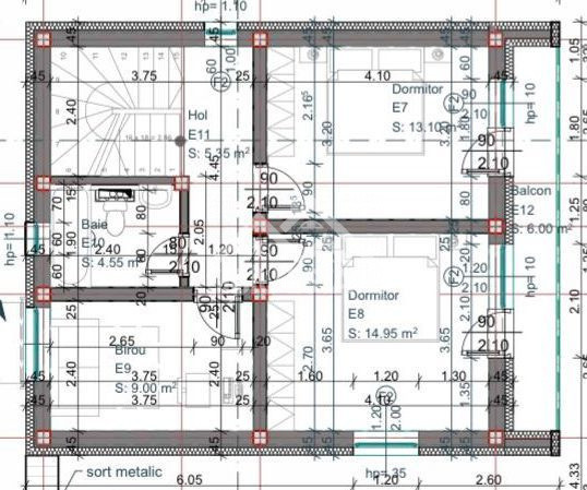
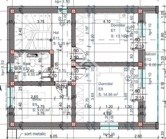
La etaj sunt 3 dormitoare, hol si baie. 2 dintre dormitoare au acces la o terasa acoperita cu vedere faina spre munti
Curtea este permisiva - poti amplasa filigorie, grill, jaquzii ....pregatita pt gazon, dar si alei pavate pe laterala casei si acces, aici este loc si pentru 2 auto
O casa bine realizata, in care te poti instala relativ repede.
Casa se vinde la 230.000 euro "La Alb"
Casa este realizata in stil modern, placari riflaje si lumini inserate fatada, terasa/balcon, incalzire in pardoseala control zonificat si inca mai poti personaliza cum iti place., daca faci alegerea acum. Programeaza o vizita !!
Sibiu Estate - Casa TA, Povestea noastra