




Satul de agitatia orasului? iti oferim spre vanzare Duplex la pret de apartament!
Proiect rezidential nou in Sura Mica, cu acces usor catre Sibiu, cu predare in 2026.
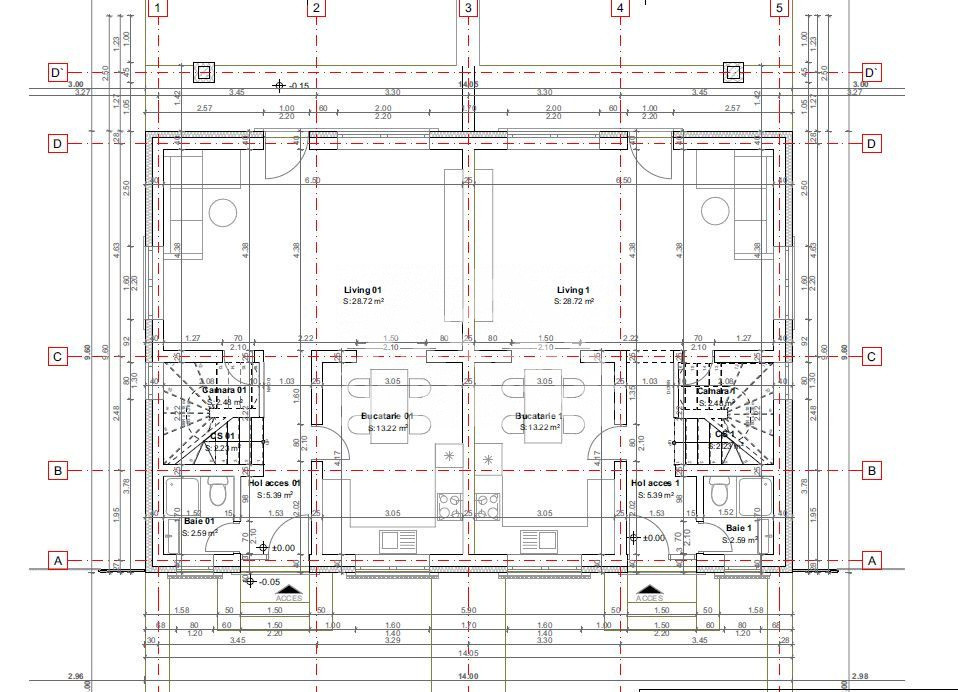
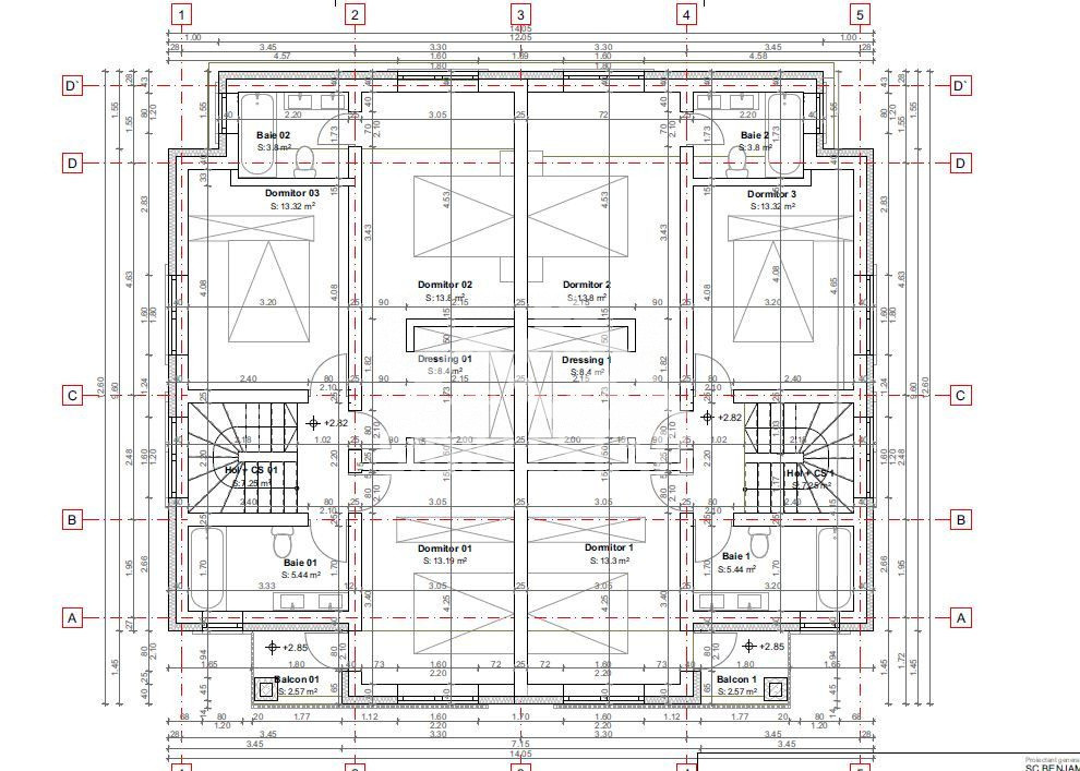
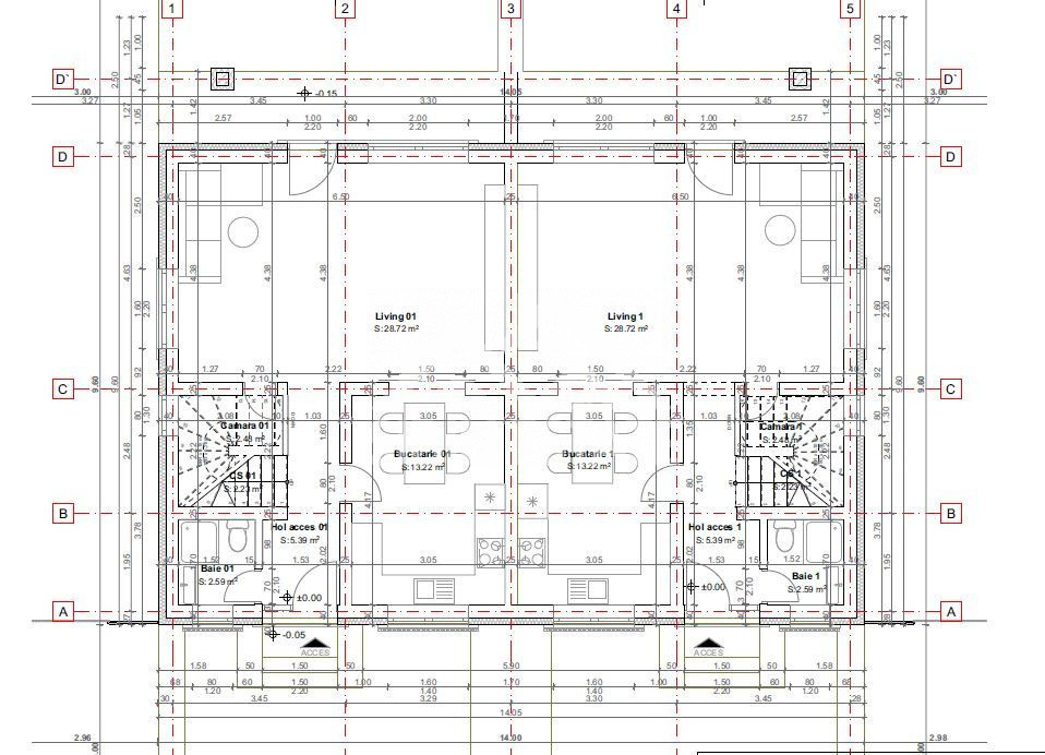
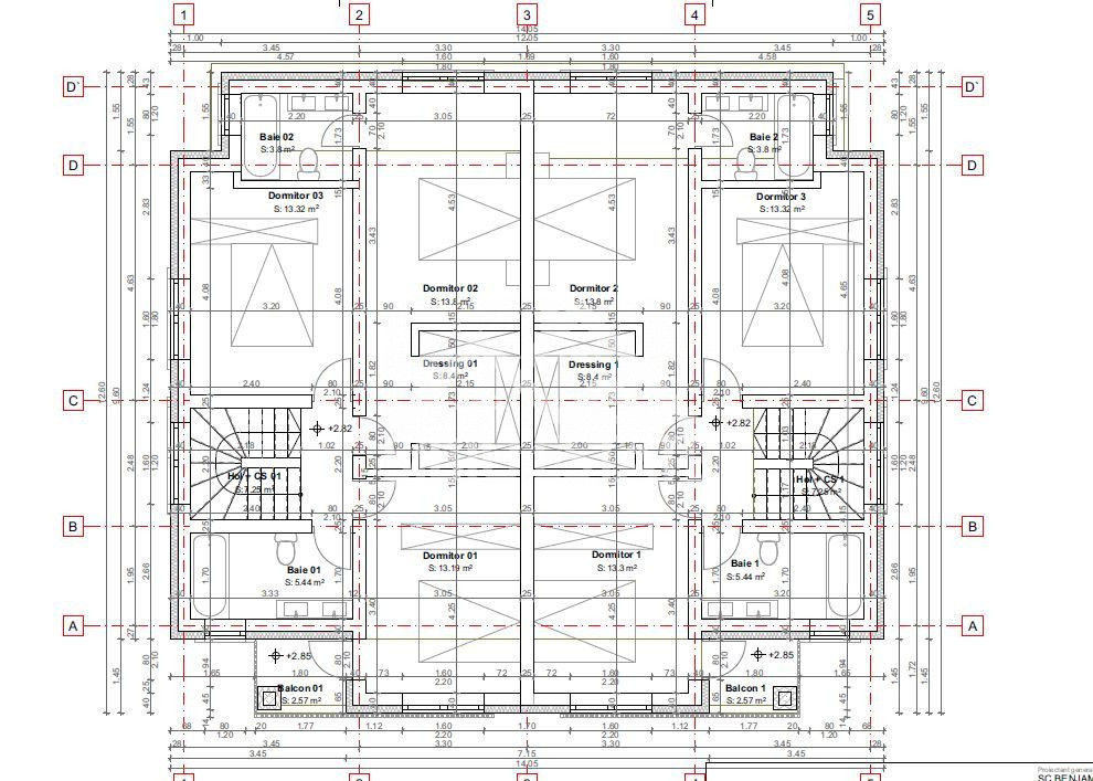
Avand suprafata utila de 120 de mp, casa este compartimentata astfel:
- Parter: Living , bucătărie separată, baie de serviciu, debara / spațiu de depozitare.
- Etaj: 3 dormitoare spațioase, dormitor matrimonial cu dressing și baie proprie, baie secundară, balcon.
Ideal pentru familii sau investiție imobiliară pe termen lung.
Construcție nouă 2025
Predare la cheie in exterior si rosu in interior
Pret: 129.700 euro Tva inclus
Se poate achizitiona si cu credit ipotecar.